TECHNICAL

AUTOCAD AND VECTORWORKS

Services

• technical precision and careful planning.

• 2D/3D technical drawings and workflows.

• from floor plans to 3D renderings.

2d and 3d technical drawings

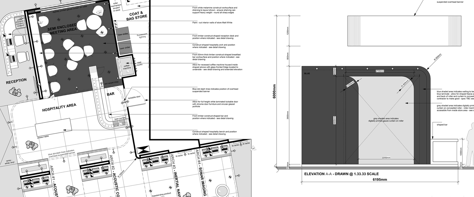
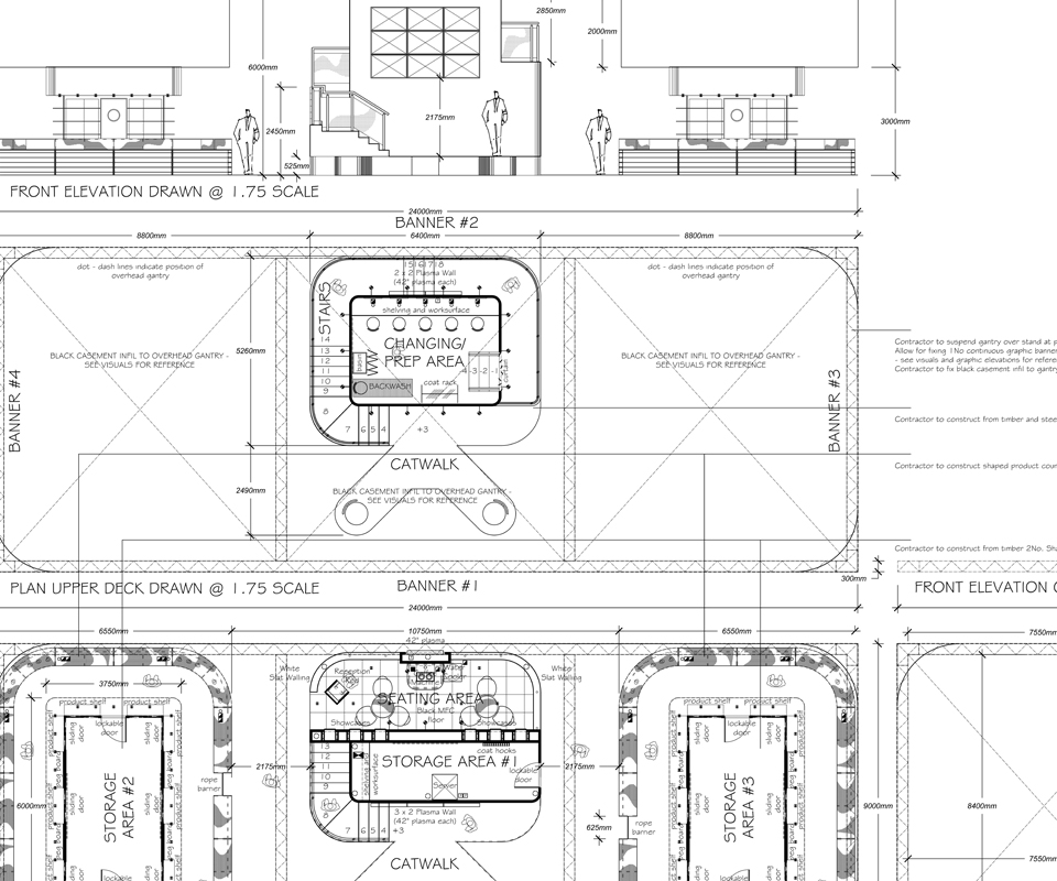
From initial concepts to final blueprints, I ensure accuracy, clarity, and a seamless collaboration with your team. I provide CAD drawings that meet the highest standards of detail and adaptability, helping you move your project forward with confidence.

Working extensively with Datasmith exports from Vectorworks to Twinmotion. I understand how to set up models for optimal transfer, manage class and layer structures, and make the most of Twinmotion’s real-time tools for high-impact presentations

Contact BARTEX DESIGN to view our portfolio

software

• 2D AutoCad

• 2D and 3D Vectorworks

Have a question? or just say hello!